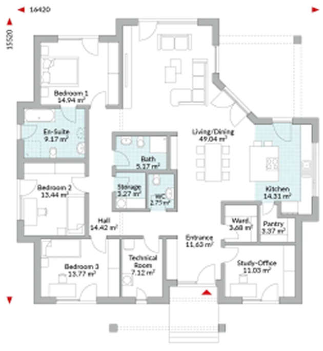
Nestled in one of Zurich’s most prestigious neighborhoods, the Alpenblick Residence offers refined, modern living with panoramic views of the Alps and Lake Zurich. This stylish, light-filled home features open-plan living areas, premium finishes, and expansive outdoor spaces. With spacious bedrooms, luxurious bathrooms, and a designer kitchen, every detail reflects quality and comfort. All within minutes of Zurich’s city center, top schools, and forest trails.

